Contact Michael Mullin

Potrero Hill

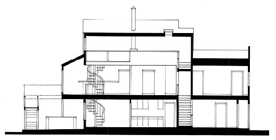
We integrated three previous additions by opening up a large, central space. We replaced the former complicated, conflicting interior details with a simple, unified, vernacular architectural language.

Michael Mullin San Francisco Architect - Renovation in Portrero Hill, San Francisco

This San Francisco house had suffered from inconsistent remodeling in the past.  We integrated all three floors visually and functionally, and reestablished its connection to the landscape. We created an open-plan, double-height living area to be the focus of the house. Generous, practical utility spaces allow the living spaces to feel unencumbered.


A pre-existing collage of Craftsman, Victorian, and contemporary architectural styles was integrated and simplified with a modern vernacular design language.




“He listened to what we wanted to do and then pulled it all together in a way we could never have done.  He also guided us through the design process to make sure we had a coherent design that reflected our values... He was extremely diligent about handling the city bureaucracy that was a necessity in a project of [this] size...”  - GS


featured in:

San Francisco Houses by Ana Cristina G. Cañizares, 2003, teNeues

Casa Y Estilo,  “Antes & Despues”

Michael Mullin San Francisco Architect - San Francisco Architecture Portfolio - Potrero Hill - Renovation in Portrero Hill, San Francisco

Michael Mullin San Franciso Architect. Michael Mullin's Architecture Portfolio for the San Fransisco Area. View Michael Mullin's Architecture Portfolio for the Architecture Projects in San Fransisco Area. . Potrero Hill. Section drawing showing connected interior spaces, renovated home, Portrero Hill, San Francisco, CA, Michael Mullin Architect

San Francisco Architecture - Introduction

San Francisco Architecture - Introduction - Welcome

San Francisco Architecture - Portfolio

San Francisco Architecture - Sustainability

San Francisco Architecture - Sustainability - Subtraction

San Francisco Architecture - Firm Profile

San Francisco Architecture - Firm Profile - About Michael Mullin

San Francisco Architecture - Firm Profile - My Colleagues

San Francisco Architecture - Firm Profile - Community Affiliations

San Francisco Architecture - Publications

San Francisco Architecture - Publications - San Francisco Chronicle

San Francisco Architecture - Publications - San Francisco Houses

San Francisco Architecture - Publications - Better Homes & Gardens

San Francisco Architecture - Publications - Kitchens for the Rest of Us

San Francisco Architecture - Publications - Casa y Estilo

San Francisco Architecture - Publications - Sunset Magazine

San Francisco Architecture - References

San Francisco Architecture - References - References

San Francisco Architecture - References - External Profiles

San Francisco Architecture - References - Videos

San Francisco Architecture - Professional Links

San Francisco Architecture - Professional Links - Links

San Francisco Architecture - Services

San Francisco Architecture - Services - Home Additions

San Francisco Architecture - Contact Us